Działka inwestycyjna Charbrowo gm. Wicko, Zaciszna
Charbrowo gm. Wicko Pokaż na mapie ›
Odświeżone: Czwartek, 12 Marzec, 2026 13:49
626 500 zł
55 zł/m2
Szczegóły ogłoszenia
- Kategoria: Działki i grunty / Sprzedaż
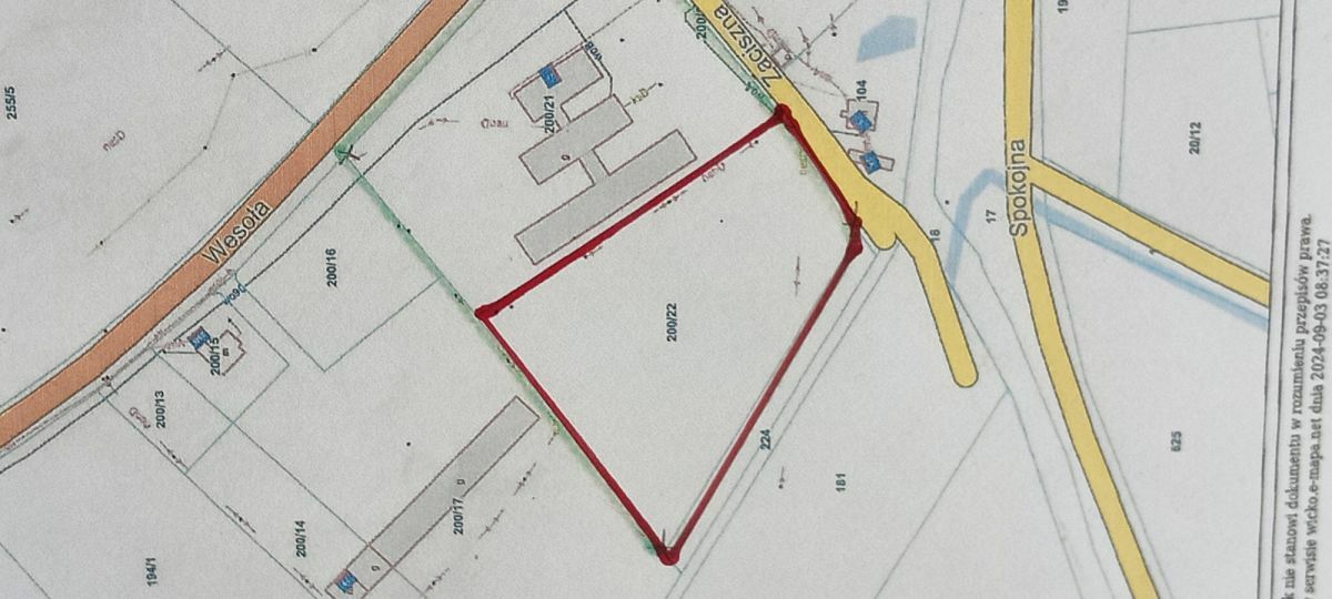
- Pow. działki:11394 m2
- Rodzaj działki:Inwestycyjna
- Sprzedaż:Pośrednik
- Cena: 626 500 zł / 55 zł/m2
Opis oferty
Nowa, niższa cena!Działka pod zabudowę jednorodzinną, usługową położona w Charbrowie, koło Łeby, przy ulicy Zacisznej, w gminie Wicko, w powiecie lęborskim o powierzchni 11 394 m2.
Możliwość dokupienia działki zabudowanej sąsiedniej, wtedy uzyskuje się obszar 24 000 m2.(cena za całość 53 zł/m2)
Nieruchomość objęta jest Miejscowym Planem Zagospodarowania Przestrzennego:
- przeznaczenie podstawowe: zabudowa mieszkaniowa jednorodzinna i zabudowa usługowa;
- przeznaczenie uzupełniające: obiekty produkcyjne;
- parametry i wskaźniki kształtowania zabudowy oraz zagospodarowania terenu:
a) maksymalna powierzchnia użytkowa obiektów produkcyjnych - 500 m²,
b) zakaz realizacji produkcji związanej z przemysłem chemicznym oraz składowaniem i przetwarzaniem odpadów,
c) forma zabudowy - wolnostojąca,.
Działkę można podzielić na mniejsze budowlane!
Prąd i woda na działce, szambo o pojemności ok. 20000 m3, w roku 2025 planowana jest budowa kanalizacji.
Kształt działki to trapez prostokątny, teren równy, na części działki znajdują się 3 budynki gospodarczo-usługowe, teren prowizorycznie ogrodzony.
Do Łeby ok.9 km, do Lęborka ok.20 km.
Chętnie Cię oprowadzę i opowiem o szczegółach.
Serdecznie zapraszam na prezentację!
Pośrednik odpowiedzialny za realizację umowy upr. zaw. Nr 16346. OFERUJEMY POMOC W UDZIELANIU KREDYTÓW. PORÓWNAJ OFERTĘ 26 BANKÓW. ZADZWOŃ ! !
Numer oferty: EC880241
Sprawdź zainteresowanie tym ogłoszeniem
Wyświetlenia
Data dodania
Ostatnio widziany
Obserwujących
Wysłane zapytania
Odsłony telefonu

Konto firmowe
Na Lento.pl od 26 maj 2022
Odpowiada szybko
Strona użytkownika
- Wypromuj ogłoszenie
- Zgłoś naruszenie
- Drukuj ulotkę
- Edytuj/usuń ogłoszenie
- Udostępnij ogłoszenie
- Dodaj na Facebook
















